back to overview

Kleine purperspreeuw

Kleine purperspreeuw main image
Kleine purperspreeuw extra image 1
Kleine purperspreeuw extra image 2
Kleine purperspreeuw extra image 3
Kleine purperspreeuw extra image 4
Kleine purperspreeuw extra image 5
Kleine purperspreeuw extra image 6
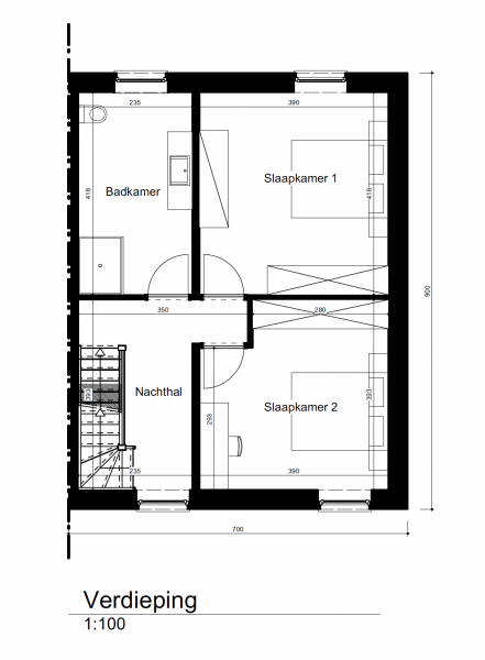
Eigentijdse woning - HOB
126m2
47.6m2
3
3