back to overview

Diamantvink

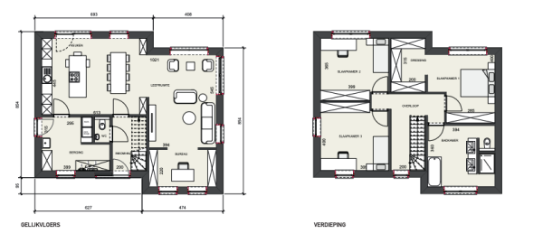
Diamantvink main image
Diamantvink extra image 1
Diamantvink extra image 2
Diamantvink extra image 3
Diamantvink extra image 4
Diamantvink extra image 5
Diamantvink extra image 6
Klassieke woning - OB
189m2
59m2
3
3